Home
About
American BOA: A Legacy of Innovation, Now Powered by Hyspan
Flexider Industrial – A Global Solutions Provider
Products
Bellows
Series 1500 Laminated Low Area Bellows Joints
Series 1500 Hyflex Bellows Expansion Joints
Series 2500 Low Pressure Round and Rectangular Expansion Joints
Series 3500 External Pressure Bellows Expansion Joints
Series 5500 Bellows Pump Connectors
Series 7500 Formed Metal Bellows
Series 8500 Expansion Compensators
Ball Joints
Barco Ball Joint
Slip Joints
Series 6500 Perma-Pax Slip Expansion Joints
Braided Hoses
Series 4500 Braided Hose Connectors
Anaconda Vibration Eliminator
V-Flex Seismic Connectors
Engineering
Additional Products
Series 6700 Barco Venturi Flow Measurement Systems
Series 6800 Flexible Strut Joints & Vibrasnubs
9500 Alignment Guides
American BOA: A Legacy of Innovation, Now Powered by Hyspan
Flexider Industrial – A Global Solutions Provider
Industries
Commercial & HVAC
Industrial Process
Petrochemical
Power Generation
Defense
Scientific & Laboratory
Maritime & Shipbuilding
OEM
Engineering & Field Services
System Tech
Axial
Lateral (Offset)
Multi Axis
Seismic & Settlement
Vibration
My Rep
North America
Commercial/HVAC
Industrial Process/Petrochem/Power
International
Commercial/HVAC
Industrial Process/Petrochem/Power
Resources
Glossary
Technical Assistance
Contact Us
Search
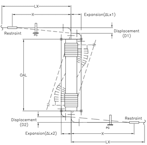
1511R Tied Universal for Lateral Motion – Two Lateral Axes
1511R Tied Universal for Lateral Motion – Two Lateral Axes
July 25, 2025